RP House
Architecture, Interior Design
Project Details
Year
Location
Category
Site Area
2023
Bandung
Residential
500 m2
The Modern Meets Traditions
The home owners has a deep love to their root of Minang. We design the facade to have a hint of Minang traditional house by giving the sihouette of deconstructed Minang traditional house. The play of lighting and material on the facade, produce a golden look that is a big part of Minang culture.

The choice of the open layout interior, brings the modern feeling and open up the space more to the natural lights. By aligning the use of light and dark material in the interior and the inner garden, we maintain the cohesiveness of the house while connecting the inside with the outside.


We chose to combine traditional material and style with iconic modern elements of interior to produce a more dynamic ambiance. We believe that an interior is more exciting when we mix different style together.
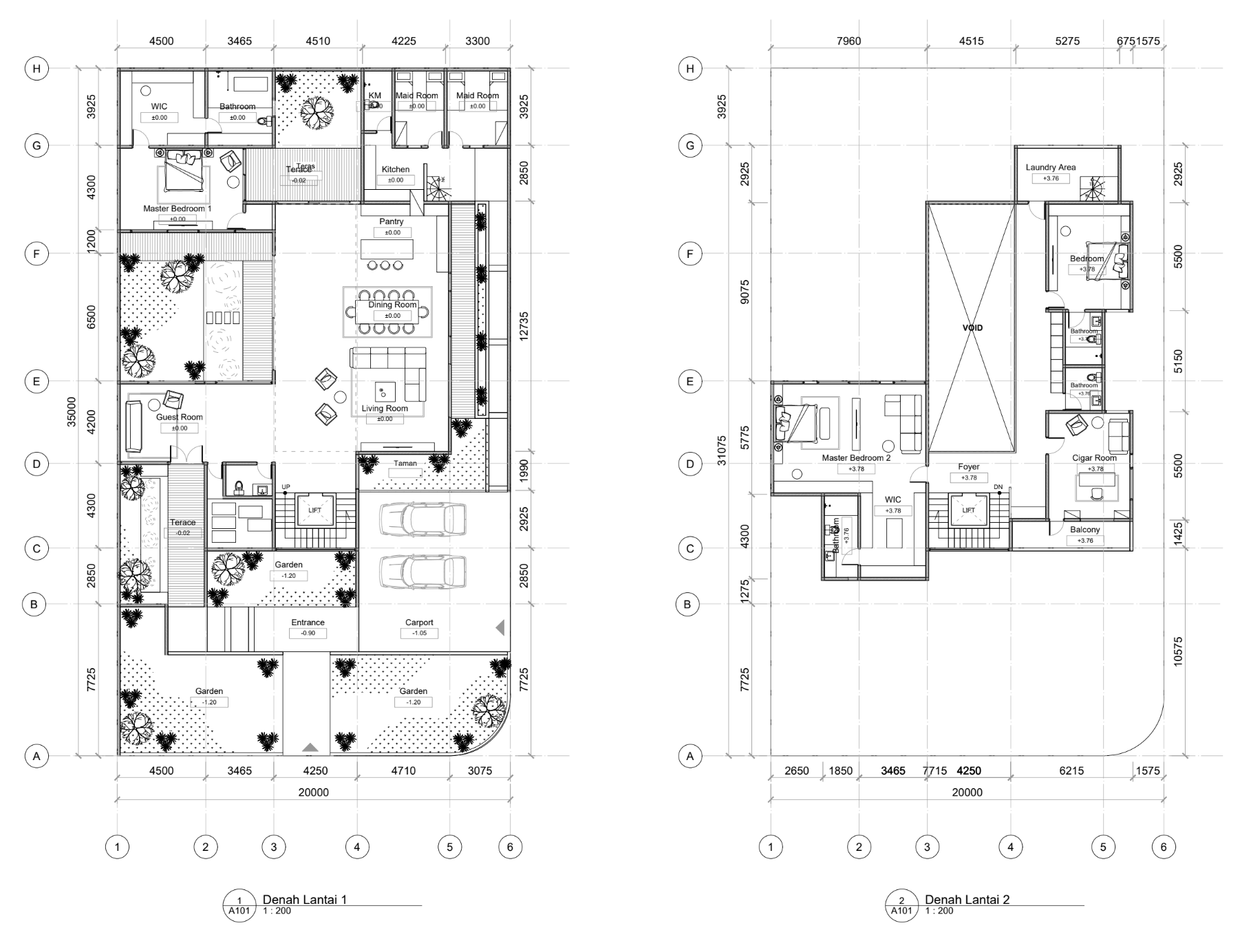
Plan




Project Team
Adin Ibrahim
Head Designer
Nur Vana Fitria
Architect
Mahfira Azmi
Interior Designer
COMMO Live Services
COMMO will design your perfect home from the ground up, from the walls and roof to the ideal sofa and artwork, ensuring every detail reflects your style and comfort.
COMMO will analyze of your existing home, from the skin to the bone. Our goal is to design a solution that maximizes the existing structure while helping you achieve your vision.”
COMMO will help you design your dream villa, a place where you can escape and unwind from the daily grind. From framing breathtaking views to selecting the perfect armchair and bathtubs, we’ll create the sanctuary you’ve always dreamed of.
COMMO will come to your apartment; see your building management; check out all dos and don’ts; then we will propose you the most suitable interior design for your personality and lifestyle.
We’re here to connect you with top vendors for everything from furniture brands and custom workshops to artwork, fabrics, rugs, and decorations. We’ll assist you through every step—specifying, quoting, and installing—ensuring a seamless experience.
COMMO will oversee the construction process. We will do the reporting every week and every milestone, to make sure everything is done properly to achieve the best results.
With the technology advancement, COMMO could easily do overseas design. Thanks to virtual meeting, virtual walkthrough, and virtual 360 design visualization, we could conduct design process as if we are face-to-face physically.